Inwestorzy po znalezieniu odpowiadającego im lokalu usługowego zwrócili się do nas z prośbą o zaaranżowanie go na potrzeby planowanej placówki medycznej. Do dyspozycji mieliśmy powierzchnię 54 m². Głównym założeniem inwestorów było wydzielenie w lokalu dwóch niezależnych gabinetów stomatologicznych.
Wejścia do lokalu
Lokal, który mieliśmy do dyspozycji, znajdował się w parterze budynku mieszkalnego wielorodzinnego. Wejście do niego prowadziło bezpośrednio z poziomu chodnika zaprojektowanego przy budynku, dzięki czemu powierzchnia, którą dysponowaliśmy, była dostępna dla osób niepełnosprawnych. Szerokość i wysokość drzwi spełniały wymagania określone przepisami. Doświetlenie światłem dziennym zapewniały duże okna rozmieszczone w trzech ścianach zewnętrznych. Czwartą, pełną ścianą, lokal sąsiadował z innym lokalem usługowym.

Wentylacja
Podstawowe pytanie, jakie zadaliśmy inwestorom odnośnie instalacji lokalu, dotyczyło liczby niezależnych kanałów wentylacyjnych wyprowadzających powietrze na zewnątrz budynku i ich przekrojów. Było to kluczowe dla stwierdzenia, czy jesteśmy w stanie dostosować ten lokal do planowanej funkcji, przy zachowaniu obowiązujących przepisów. Na szczęście okazało się, że mamy do dyspozycji cztery niezależne kanały. Z obliczeń projektanta wentylacji mechanicznej nawiewno- wywiewnej wynikło, że ich wielkości będą wystarczające dla ustalonego przez inwestorów programu funkcjonalnego. Konieczne było tylko zamontowanie czerpni powietrza w jednej z kwater okiennych. Wysokość kondygnacji 3,2 m pozwalała na poprowadzenie pod stropem kanałów wentylacyjnych przy zachowaniu wymaganych przepisami wysokości poszczególnych pomieszczeń.
Piony kanalizacyjne
W lokalu zaprojektowano pion kanalizacyjny znajdujący się w szachcie instalacyjnym, umieszczonym przy jednej ze ścian zewnętrznych budynku. Do obsłużenia projektowanych w placówce przyborów (przy zachowaniu wymaganych spadków instalacji) konieczne stało się przejście z instalacją kanalizacji przez strop na kondygnację pod lokalem i tam włączenie się do istniejących poziomów kanalizacyjnych. Administrator budynku poinformował nas, że pod lokalem znajduje się garaż podziemny. W przypadku wykonywania jakichkolwiek prac poza lokalem konieczne jest uzyskanie na nie zgody administratora lub zarządcy budynku. Najczęściej wymaga on przedłożenia do akceptacji projektu planowanych robót wraz z opisem. Gdy prace mają się odbywać w częściach wspólnych budynku, np. w hali garażowej, uzyskanie takiej zgody jest zazwyczaj proste. Sytuacja się komplikuje, gdy projektowane instalacje mają być prowadzone w przestrzeni prywatnych komórek lokatorskich. Wówczas konieczne jest uzyskanie zgód właścicieli poszczególnych komórek. Wiedzieliśmy, że w ostateczności, gdy nie będzie możliwe wykonanie instalacji z zachowaniem wymaganych spadków, możemy zastosować pompki. Niemniej staramy się tego unikać jako rozwiązania awaryjnego. Podczas wizyty na miejscu stwierdziliśmy jednak, że część budynku, w której znajduje się lokal, nie jest podpiwniczona. Dawało nam to możliwość na swobodne prowadzenie instalacji pod posadzką lokalu.
Program funkcjonalny
Program funkcjonalny inwestorów zakładał stworzenie dwóch niezależnych gabinetów stomatologicznych. Jeden z nich miał być dodatkowo wyposażony w tomograf. Sterylizatornia zorganizowana w osobnym pomieszczeniu nie była priorytetem inwestorów, więc dopuściliśmy możliwość zaprojektowania ciągu sterylizacyjnego w jednym z gabinetów. Pomimo tego, że przepisy pozwalają na przeprowadzanie sterylizacji w gabinecie, zdecydowanie wygodniejszym rozwiązaniem jest przeznaczenie na ten cel osobnego pomieszczenia. Nie ma wtedy konieczności zapewnienia rozdziału czasowego między przyjmowaniem pacjentów w gabinecie a przeprowadzaniem w nim sterylizacji. W związku z tym, że przy ustalonym programie funkcjonalnym mieliśmy do dyspozycji tylko 54 m² powierzchni, wiedzieliśmy, że konieczne będzie pójście na kompromisy. Opracowaliśmy różne warianty układów funkcjonalnych, by inwestorzy poznali możliwości, jakie daje nam lokal i mogli wybrać wariant najbliższy swojemu ideałowi.
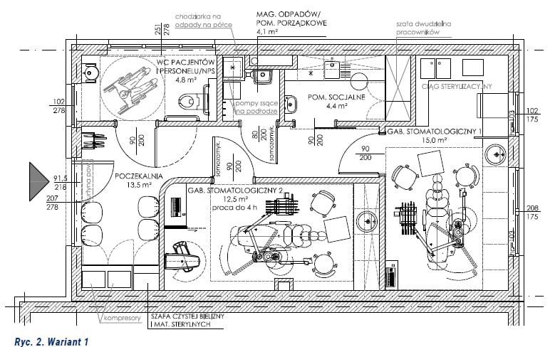
WARIANT 1
Wariant pierwszy stanowił rozwinięcie pomysłu inwestorów na aranżację przestrzeni.

POCZEKALNIA
Funkcję wejścia głównego do lokalu pełnią drzwi, umieszczone w witrynie okiennej. Wejście to prowadzi bezpośrednio do poczekalni, w której znajdują się miejsca siedzące dla pacjentów i wieszak na ich okrycia wierzchnie. Nad drzwiami wisi kurtyna powietrzna. Inwestorzy zrezygnowali z wydzielenia w poczekalni miejsca na ladę rejestracji. W głębi pomieszczenia, na prawo od wejścia, zaprojektowałam wysoką zabudowę meblową. W jednej z jej części stoją na podłodze dwa kompresory, a nad nimi wiszą półki, np. na dokumentację. Szafa z kompresorami powinna być wyizolowana akustycznie (dopuszczalny poziom hałasu: 35 dB) i mieć zapewnione doprowadzenie świeżego powietrza do urządzeń. Druga część zabudowy jest przeznaczona na szafę czystej bielizny i materiałów sterylnych.
GABINET STOMATOLOGICZNY 1
Gabinet stomatologiczny nr 1 usytuowany jest w głębi lokalu. Na prawo od wejścia wydzielona została strefa leczenia, a na lewo – aneks z ciągiem sterylizacyjnym. Unit stoi bokiem do okien, pacjent ma do niego łatwy dostęp. Szafki dolne, z blatem roboczym i umywalką, ustawione są przy ścianie pod oknem, z boku unitu od strony asysty. Blat projektowany na wysokości 90 cm nad posadzką może być zamontowany pod parapetem okiennym, znajdującym się na wysokości 105 cm nad podłogą. Niewielki blat z komputerem umiejscowiłam w rogu pomieszczenia tak, by lekarz miał do niego łatwy dostęp. Aparat punktowy RTG zamontowany jest na unicie. Ciąg technologiczny sterylizacji rozpoczyna się z lewej strony odcinkiem materiałów skażonych, dalej znajduje się odcinek mycia i dezynfekcji (ze zlewem dwukomorowym), zgrzewarka, autoklaw oraz odcinek materiałów sterylnych. Ciąg sterylizacyjny od blatu roboczego przy unicie oddziela cienka ścianka. Znajdująca się przy niej umywalka pełni funkcję stanowiska higieny rąk także dla ciągu sterylizacyjnego.
GABINET STOMATOLOGICZNY 2
Drugi gabinet stomatologiczny umieszczony jest przy ścianie bez okien. Ze względu na brak doświetlenia światłem dziennym jest w nim możliwa tylko praca czasowa (do 4 godzin dziennie, ta sama osoba). Unit ustawiłam bokiem do wejścia – pacjent wchodzący do gabinetu ma łatwy dostęp do fotela unitu. Szafki z blatem roboczym i umywalką zaprojektowałam na ścianie za zagłówkiem fotela. Aparat punktowy RTG zamontowany jest na unicie. Biurko z zestawem komputerowym stoi na prawo od wejścia, obok tomografu. Wyzwalanie zdjęć odbywa się w gabinecie, więc między biurkiem a tomografem zaprojektowałam przesuwną ściankę z blachą ołowianą.
POMIESZCZENIE SOCJALNE
Pomieszczenie socjalne, pełniące także funkcję szatni personelu, sąsiaduje z gabinetem stomatologicznym nr 1. Na lewo od drzwi wisi umywalka, służąca do higieny rąk. Na sąsiedniej ścianie zaprojektowałam zabudowę kuchenną, przeznaczoną do przyrządzania posiłków (z lodówką podblatową, zlewozmywakiem i szafkami górnymi) oraz odcinek blatu do ich higienicznego spożywania. Szafa dwudzielna pracowników stoi na prawo od wejścia.
MAGAZYN ODPADÓW/ POMIESZCZENIE PORZĄDKOWE
W sąsiednim pomieszczeniu zaprojektowałam magazyn odpadów, pełniący funkcję pomieszczenia porządkowego. Przenośne urządzenie chłodnicze na odpady medyczne stoi na półce we wnęce, w głębi pomieszczenia. Wyżej wiszą półki na detergenty i środki czystości, a na ścianie obok haki na worki z brudną bielizną. Zlew gospodarczy umieściłam naprzeciwko wejścia do magazynu. Na podłodze stoją dwie pompy ssące, od których musi być zapewnione odprowadzenie zużytego powietrza na zewnątrz budynku i odpływ do kanalizacji. Funkcję umywalki do higieny rąk pełni umywalka zamontowana w toalecie, sąsiadującej z magazynem odpadów.
WC PACJENTÓW I PERSONELU/ NPS
Toaleta pacjentów i personelu jest przystosowana do potrzeb osób niepełnosprawnych. Zapewniono w niej miejsce manewrowe dla wózka inwalidzkiego o wymiarach 1,5 m x 1,5 m poza obrysem urządzeń, stanowiących wyposażenie pomieszczenia. Umywalka ze zintegrowanymi uchwytami, umożliwiającymi podjechanie pod nią wózkiem inwalidzkim, wisi na ścianie na lewo od wejścia. Miska ustępowa z pochwytami, pozwalającymi na transfer z wózka inwalidzkiego, znajduje się po przeciwległej stronie pomieszczenia, w pobliżu pionu kanalizacyjnego.
WARIANT 2
W tym wariancie zaprojektowałam osobną sterylizatornię, a w obu gabinetach może być wykonywana praca stała.

POCZEKALNIA
Poczekalnia ma zbliżony układ do tego z pierwszego wariantu. Zabudowa szaf, na prawo od wejścia, jest podzielona na dwie części: szafę czystej bielizny i materiałów sterylnych oraz szafę porządkową ze zlewem gospodarczym z półkami na detergenty i środki czystości. Szafę odpadów, z przenośnym urządzeniem chłodniczym, dwoma pompami ssącymi i hakami na worki z brudną bielizną, zaprojektowałam na lewo od wejścia. Funkcję umywalki do higieny rąk pełni umywalka zamontowana w sąsiedniej toalecie.
GABINET STOMATOLOGICZNY 1
Unit stoi tyłem do okna, tak aby szafki dolne z blatem roboczym i umywalką, umieszczone pod oknem, mogły być usytuowane za zagłówkiem fotela unitu. Biurko lekarza z zestawem komputerowym umieściłam w pobliżu wejścia do gabinetu. Może tu być prowadzona rozmowa lekarza z pacjentem siedzącym na krześle obok biurka. Aparat punktowy RTG wisi na ścianie koło unitu.
GABINET STOMATOLOGICZNY 2
Unit ustawiłam względem okna tak, by pacjent patrzył na nie, siedząc na fotelu unitu. Szafki dolne z blatem roboczym i umywalką oraz szafki górne umieściłam z boku unitu, od strony asysty. Obok nich, przy wejściu do gabinetu, znajduje się biurko z zestawem komputerowym i krzesło pacjenta. We wnęce za zagłówkiem unitu stoi tomograf. Przesuwna ścianka z warstwą ołowiu zabezpiecza osobę stojącą obok biurka w momencie wykonywania zdjęcia. Aparat punktowy RTG wisi na ścianie przy unicie.
STERYLIZATORNIA
Sterylizatornia sąsiaduje z gabinetem nr 2. Nie ma w niej okna zapewniającego doświetlenie pomieszczenia światłem dziennym, więc możliwe jest wykonywanie w nim tylko pracy czasowej (do 4 godzin dziennie, ta sama osoba). Ciąg technologiczny sterylizacji rozpoczyna się na lewo od wejścia, odcinkiem materiałów skażonych. Dalej znajduje się odcinek mycia i dezynfekcji (ze zlewem dwukomorowym), zgrzewarka, autoklaw oraz odcinek materiałów sterylnych. Narożną umywalkę, pełniącą funkcję stanowiska higieny rąk, umieściłam na prawo od wejścia. Dwa kompresory wstawione są do szafek dolnych, które powinny być wyizolowane akustycznie (dopuszczalny poziom hałasu: 35 dB) i mieć zapewnione doprowadzenie świeżego powietrza do urządzeń.
POMIESZCZENIE SOCJALNE
Pomieszczenie socjalne, pełniące funkcję szatni personelu, zlokalizowałam w pobliżu wejścia do placówki. Na prawo umiejscowiłam ciąg kuchenny z umywalką do higieny rąk, lodówką podblatową, zlewozmywakiem i odcinkiem blatu do spożywania posiłków. Nad blatem roboczym wiszą szafki górne. Szafki ubraniowe dwudzielne pracowników ustawiłam obok blatu do spożywania posiłków.
WC PACJENTÓW I PERSONELU/ NPS
Toaletę pacjentów i personelu, przystosowaną do potrzeb osób niepełnosprawnych, umieściłam między pomieszczeniem socjalnym a gabinetem nr 1. Umywalka ze zintegrowanymi uchwytami i miska ustępowa z pochwytami dla niepełnosprawnych znajdują się na jednej ścianie, na lewo od wejścia.
WARIANT 3
Na prośbę inwestorów, w tym wariancie, wydzieliłam dodatkowo toaletę dla personelu. Wiązało się to z koniecznością rezygnacji ze sterylizatorni w osobnym pomieszczeniu.
POCZEKALNIA
Zabudowa meblowa, umieszczona w głębi poczekalni, na prawo od wejścia, została w całości przeznaczona na szafę odpadów, pełniącą także funkcję szafy porządkowej. Na podłodze stoją dwie pompy ssące, a na półce nad nimi znajduje się przenośne urządzenie chłodnicze na odpady medyczne. Na ścianie obok wisi zlew gospodarczy i haki na worki z brudną bielizną. Wyżej zaprojektowane zostały półki na detergenty i środki czystości.
GABINET STOMATOLOGICZNY 1
Na prośbę inwestorów, unit stoi przodem do okna, a szafki z blatem roboczym i umywalką usytuowane są od strony nóg pacjenta siedzącego na fotelu. Biurko lekarza, przy którym prowadzona jest rozmowa z pacjentem, stoi przy wejściu do gabinetu. Aparat punktowy RTG wisi na ścianie, obok unitu.
GABINET STOMATOLOGICZNY 2
W drugim gabinecie stomatologicznym umieszczony został zarówno ciąg sterylizacyjny, jak i tomograf. Biurko lekarza z zestawem komputerowym znajduje się przy wejściu do pomieszczenia. Na prawo od niego wyznaczona została strefa wykonywania zdjęć przy użyciu tomografu, ustawionego przy zewnętrznej ścianie murowanej lokalu. Osobę, wykonującą zdjęcie przy biurku, ochrania ścianka przesuwna z warstwą ołowiu, umieszczona między biurkiem a aparatem. Wzdłuż ściany, obok biurka, zaprojektowałam dwie grupy szafek z blatami roboczymi, oddzielone od siebie ścianką. Pierwsza, z umywalką, wykorzystywana będzie podczas pracy przy unicie, a druga, stanowi ciąg sterylizacyjny. Unit stoi przodem do okna, a aparat punktowy RTG wisi na ścianie, obok unitu. Do dolnych szafek zostały wstawione dwa kompresory.
ZAPLECZE SOCJALNE
W pomieszczeniu socjalnym, na lewo od wejścia, stoją cztery szafki dwudzielne pracowników. Na ścianie, naprzeciwko drzwi, umieściłam zabudowę kuchenną z blatem do spożywania posiłków. Do toalety personelu prowadzą drzwi przesuwne, chowane w ścianę. W przedsionku kabiny WC znajduje się umywalka do higieny rąk.
WC PACJENTÓW/NPS
Toaleta przystosowana do potrzeb osób niepełnosprawnych przeznaczona jest wyłącznie dla pacjentów. Wnęka obok szachtu instalacyjnego została wykorzystana na szafkę do przechowywania np. detergentów i środków czystości.
Autor: Marta Maliszewska
Architektka, absolwentka Wydziału Architektury i Urbanistyki Politechniki Wrocławskiej. Właścicielka firmy "tuto" Pracownia Architektoniczna. Zajmuje się projektowaniem budynków i wnętrz mieszkalnych oraz użyteczności publicznej. Specjalizuje się w projektowaniu obiektów medycznych, w szczególności gabinetów stomatologicznych.
Kontakt do autora: www.tuto.com.pl
Artykuł opublikowany w numerze 6/2025 magazynu Nowy Gabinet Stomatologiczny. Zobacz pełny spis treści. Dowiedz się więcej - Nowy Gabinet Stomatologiczny.
Więcej ciekawych artykułów w "Nowy Gabinet Stomatologiczny" -zamów prenumeratę lub kup prenumeratę w naszym sklepie.







